Algunos de Nuestros Proyectos:

Centros de cómputo

.


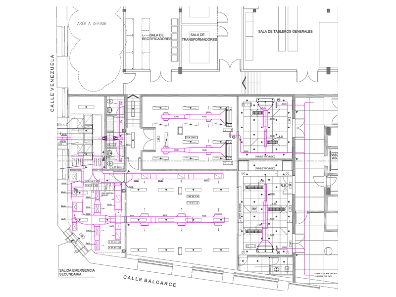
Banelco - Data Center

México 444. Capital Federal
Año: 2000
Proyecto de Arq.: Banelco

Adecuación de un edificio existente y su sistema de aire acondicionado. Se destinan tres de los nueve equipos de aire con sus respectivas cajas VAV para el servicio del Centro de Cómputo, quedando los otros seis equipos para confort en la zona de oficinas y funcionando como Back Up de los otros tres.

Capacidad de Refrigeración:

Capacidad
de Calefacción:

Superficie:


1.300 m²

Diveo Diginet

Año: 2001
Proyecto de Arq.: Arquitecto Catuara

Sistema de aire acondicionado para NOC y salas de presentación y oficinas administrativas. Sistema con equipos fan-coil centrales e individuales. Sistema de VAV.

Capacidad de Refrigeración:

42TR

Capacidad
de Calefacción:

Superficie:


150 m²

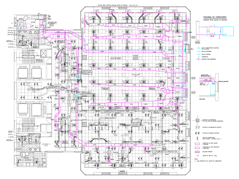
Lucent Technologies S.A.

Año: 2001
Proyecto de Arq.: Aslan & Ezcurra Arquitectos

Sistema de aire acondicionado para el centro de cómputos con equipos de precisión con condensación por agua. Adaptación del sistema de aire acondicionado para las oficinas.

Capacidad de Refrigeración:

16 TR

Capacidad
de Calefacción:

Superficie:


70 m²

OSDE Parque Patricios - Data Center

Año: 2012
Proyecto de Arq.: Estudio Swiecicki

Sistema de aire acondicionado de nivel TIER 3 para el centro de cómputos de la empresa OSDE con equipos tipo CRAC (Computer Room Air Conditioning Units) de expasión directa, con condensadores remotos enfriados por aire.

Capacidad de Refrigeración:

86 TR

Capacidad
de Calefacción:

Superficie:


200 m²