Algunos de Nuestros Proyectos:

Oficinas / Bancos

Edificios de oficinas, Sucursales bancarias


Edificio Techint

Av. Córdoba 320, Ciudad de Buenos Aires.
Año: 2005
Proyecto de Arq.: Ellis y Asociados. Arquitectos.

Sistema de climatización por medio de Volúmen de Refrigerante Variable VRV y ventilaciones mecánicas.

Capacidad de Refrigeración:

160 TR

Capacidad
de Calefacción:

Superficie:


Cía. Gillette de Argentina S.A.

Edificio de oficinas Ugarte y Panamericana, Munro, Prov. de Buenos Aires.
Año: 1995
Proyecto de Arq.: Aslan y Ezcurra y Asociados Arquitectos.

Sistema frío y calor todo aire con sistema de Volumen de Aire Variable (VAV). Proyecto y Dirección de Obra.

Capacidad de Refrigeración:

175 TR

Capacidad
de Calefacción:

61.700 kcal/h

Superficie:


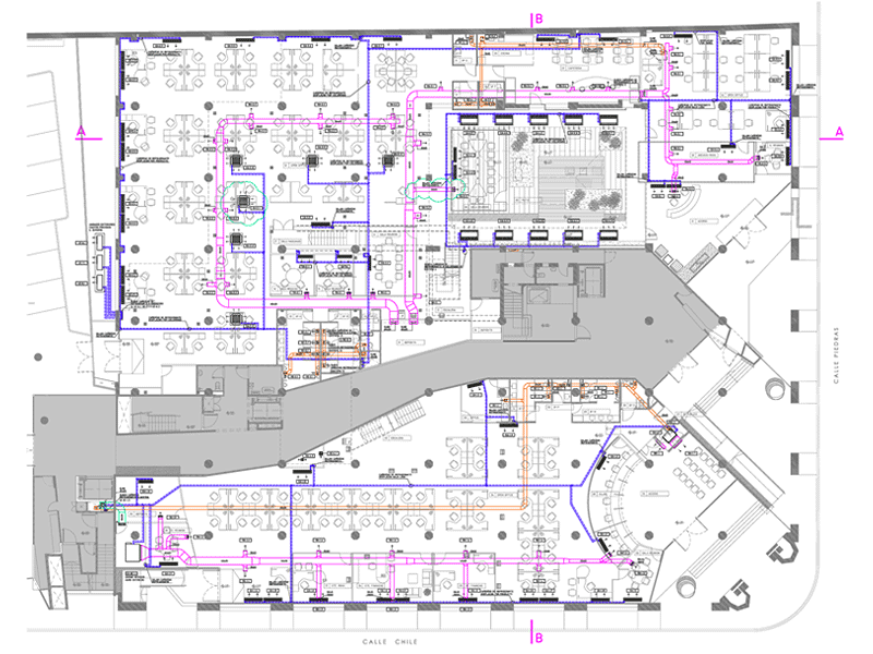
Mediterranean

Piedras y Chile. Capital Federal.
Año: 2008
Proyecto de Arq.: Rubinat Arquitectura

Sistemas de acondicionamiento tipo VRV, frío-calor con calefacción por bomba de calor. La distribución de aire desde las unidades evaporadoras sobre cielorraso realizadas por medio de una red de conductos de alimentación y retorno con difusores terminales. Sistema de Inyección de aire exterior y extracciones mecánicas de locales sanitarios y salas de máquinas. Proyecto y Dirección de Obra.

Capacidad de Refrigeración:

97 TR

Capacidad
de Calefacción:

117.800 kcal/h

Superficie:


2.200 m²

Edificio Novartis (ex CIBA - Geigy de Argentina)

Capital Federal
Año: 1994
Proyecto de Arq.: Aslan y Ezcurra y Asociados Arquitectos.

Sistema frío y calor todo aire con sistema de Volumen de Aire Variable (VAV), con generación de agua fría y caliente. Proyecto y Dirección de Obra.

Capacidad de Refrigeración:

390 TR

Capacidad
de Calefacción:

Superficie:


Osde Mendoza

Provincia de Mendoza.
Año: 2008
Proyecto de Arq.: ESARQ - Swiecicki Arquitectos.

Sistema de aire acondicionado central con equipos autocontenidos del tipo Roof-Top frío-calor. Extracciones mecánicas de cocheras, locales sanitarios y salas de máquinas. Proyecto.

Capacidad de Refrigeración:

195 TR

Capacidad
de Calefacción:

301.900 kcal/h

Superficie:


4.200 m²

Edificio Oficinas Pluspetrol - Sede Neuquén

Provincia de Neuquén.
Año: 2006
Proyecto de Arq.: Poli + Boxaca Arquitectas

Sistema de Aire Acondicionado para Oficinas con equipos tipo Roof-Top.

Capacidad de Refrigeración:

67 TR

Capacidad
de Calefacción:

146.200 kcal/h

Superficie:


1.100 m²

Sancor Seguros

Sunchales, Provincia de Santa Fé
Año: 2007
Proyecto de Arq.: Jeffrey Berk Arquitecto.

Para el edificio del frente se utiliza un sistema de aire acondicionado frío-calor con generación de agua fría y agua caliente con unidades manejadoras de aire distribuidas en Salas de Máquinas atendiendo a las distintas zonas de la planta. Para las Edificios tipo “Pastillas” se utilizan Unidades Manejadoras de Aire con cajas VAV para regular la temperatura en las distintas zonas.

Capacidad de Refrigeración:

600 TR

Capacidad
de Calefacción:

460.000 kcal/h

Superficie:


22.800 m²