Algunos de Nuestros Proyectos:

Comerciales

Shoppings, Supermercados, Restaurantes, Locales Comerciales


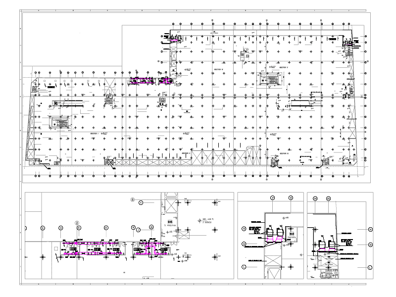
Shopping Buenos Aires Mall

Tortuguitas, Prov. de Buenos Aires
Año: 2008
Proyecto de Arq.: Bodas - Miani - Anger Arquitectos

Sistema central de aire acondicionado con equipos tipo Roof-Top para circulaciones, accesos, espacios comunes y patio de comidas. Sistema de Volumen de Refrigerante Variable VRV con bomba de calor para los locales comerciales. Inyección de Aire Exterior para locales comerciales. Ventilaciones mecánicas de locales sanitarios, vestuarios, depósitos y trastiendas. Extracción de cocheras y sala de máquinas del subsuelo.

Capacidad de Refrigeración:

1400 TR

Capacidad
de Calefacción:

475.000 Kcal/h

Superficie:


9000 m²

Supermercado Disco

Savoy. Capital Federal.
Año: 2005
Proyecto de Arq.: Gonzalez Panal. Arquitecto.

Sistema central de aire acondicionado con equipos tipo Roof-Top y compactos. Ventilaciones mecánicas de depósitos y trastiendas.

Capacidad de Refrigeración:

30 TR

Capacidad
de Calefacción:

46.500 Kcal/h

Superficie:


1.300 m²

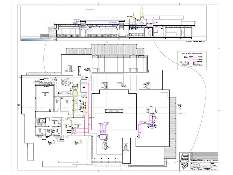
Kansas Pilar

Pilar, Prov. de Buenos Aires
Año: 2008
Proyecto de Arq.: Aslan y Ezcurra Arquitectos.

Climatización del salón principal y laterales por medio de Equipos del tipo Roof-Top con calefacción por Gas Natural. La barra secundaria y patio central climatizado por medio de un sistema de Volumen de Refrigerante Variable VRV. Inyección de Aire Exterior en cocina. Ventilaciones mecánicas de cocinas, depósitos y vestuarios.

Capacidad de Refrigeración:

94 TR

Capacidad
de Calefacción:

178.000 kcal/h

Superficie:


1.200 m²

Showcenter Haedo

Haedo, Prov. de Buenos Aires
Año: 1997
Proyecto de Arq.: Maccarone Emprendimientos S.A.

Centro de compras y esparcimiento con 14 salas de cine. Aire acondicionado frío – calor para espacios públicos y cines con equipos roof-top. Sistema de agua de condensación para locales comerciales y gastronómicos. Proyecto y Dirección de Obra.

Capacidad de Refrigeración:

1700 TR

Capacidad
de Calefacción:

Superficie:


9.000 m²

The Home Depot

Aguila
Año: 1999
Proyecto de Arq.: Estudio Alberto Fernández Prieto y Asociados.

Sistema todo aire con equipos de frío-calor del tipo Roof-Top. Extracciones y ventilaciones mecánicas. Proyecto y Dirección de Obra.

Capacidad de Refrigeración:

270 TR

Capacidad
de Calefacción:

Superficie: